Skip to content

Rayo Martin Buona Volontà,

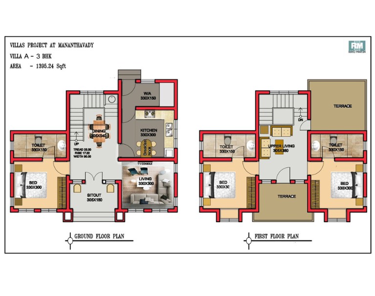
Wayanad ( 3 ad 4 BHK Premium Villa)

Type

Premium Villa

Location

Wayanad

Status

Sold Out

Area

2500sqft

Configuration

3 & 4BHK

Project Gallery

About the Project

RM Buona Volontà is the expression of a world-class vision — to create an iconic landmark in one of the world’s finest tourist destinations, offering homes of distinction for India’s most accomplished families. Designed to deliver an unparalleled range of lifestyle experiences, the project features independent villa constructions within the same compound, combining exclusivity, elegance, and community living in one exceptional address.